Casa Privadita 16
Proyecto habitacional de 3 casas tipo de dos niveles, Desarrollo en el centenario municipio de La Paz Baja California. Cada uno cuenta con terraza y estacionamiento privados.
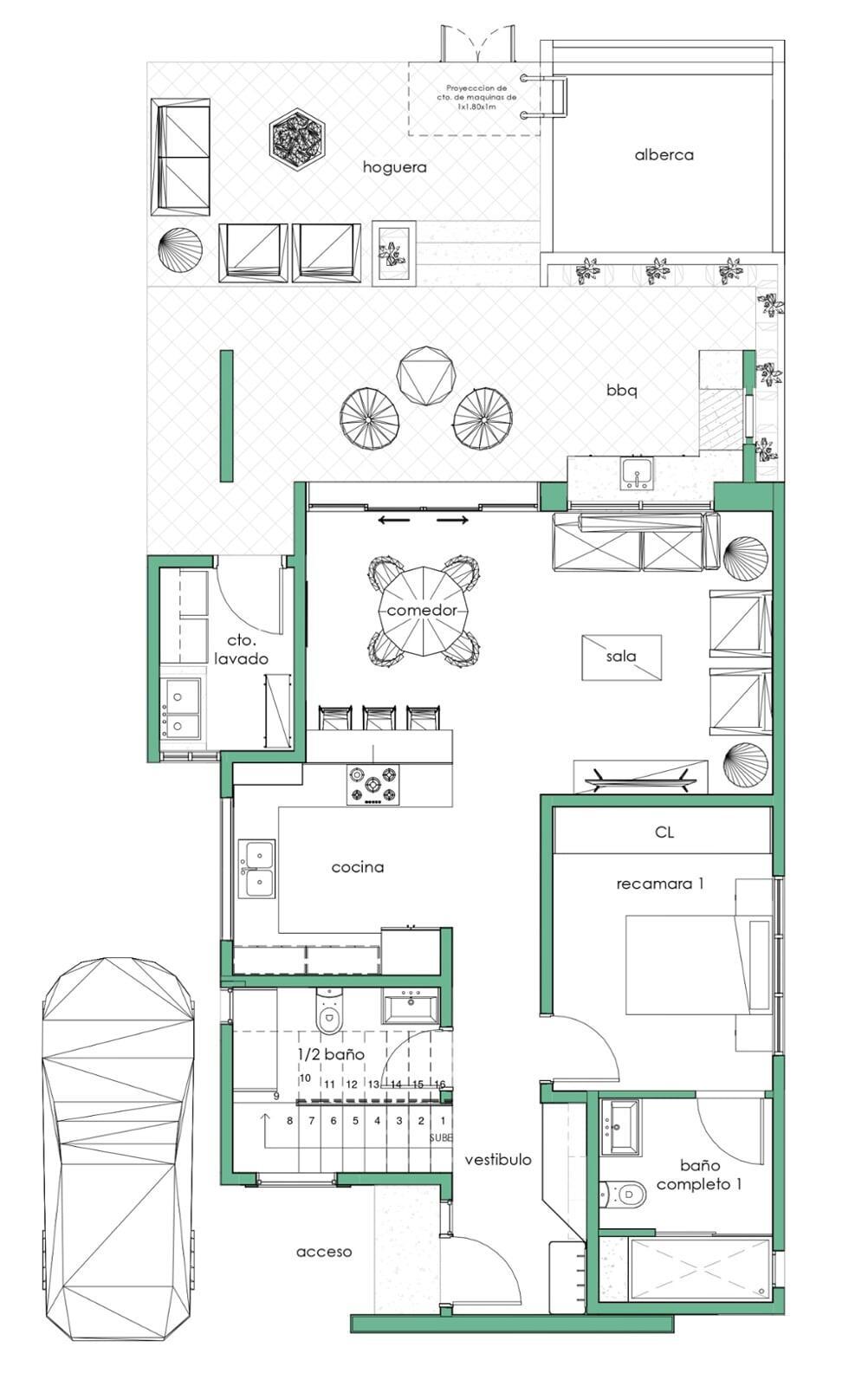
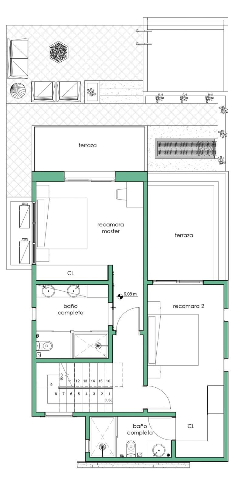
Privadita 16 es una casa con espacios amplios tanto interiores como exteriores, la cual la hacen un lugar perfecto para vivir. Sobre salen los pequeños detalles en ladrillo y vara trabada que le dan a la fachada una vista limpia y elegante. Su acceso discreto y ventanas verticales le dan la privacidad necesaria a los espacios interiores.
Se elaboró proyecto ejecutivo (Diseño arquitectónico, estructural, hidráulico, sanitario, eléctrico, gas, aire acondicionado, pluvial, trazo, carpintería, cancelería y acabados). Proyecto elaborado en Software BIM.
Diseño arq.








Construcción
La construcción fue ejecutada por un tercero por parte del propietario.










