Privada Independencia
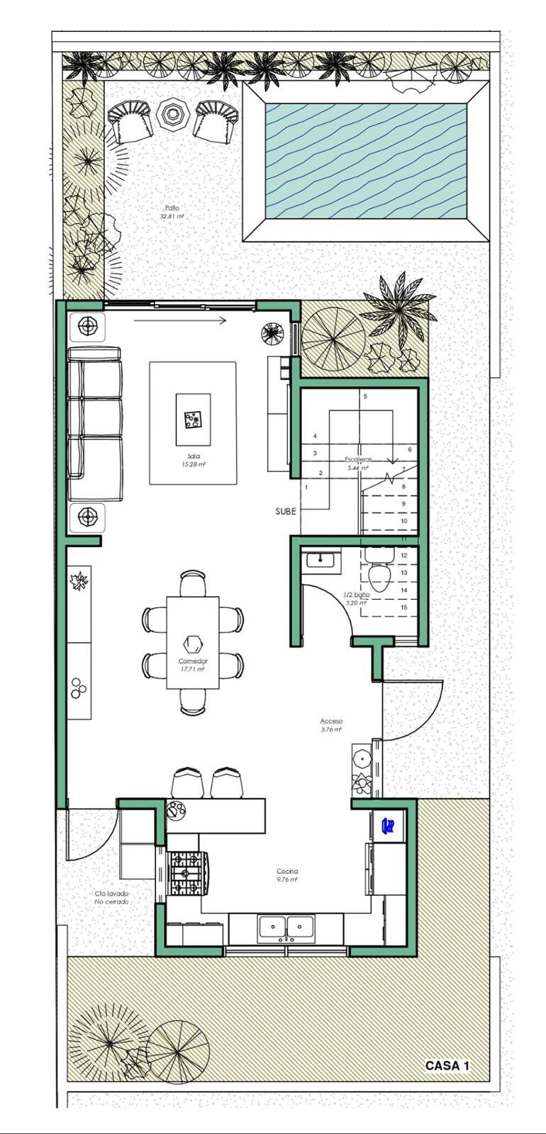
Proyecto habitacional de cuatro viviendas en régimen en condominio, que constan cada una de 2 recamaras, 2 baños completos, 1 baño visitas, comedor exterior, alberca, y patio. El cubo de la escalera conecta hasta la azotea donde puedes accesar a un futuro Roof Top, Diseño Moderno, espacios abiertos, colores neutrales y acabados naturales.
Se elaboró Ante Proyecto (Diseño arquitectónico, plantas, cortes, fachadas, conjunto.). Proyecto elaborado en Software BIM.
Diseño arq.










Construcción
El Propietario aun no inicia la construcción.











