Town Houses Lattitud
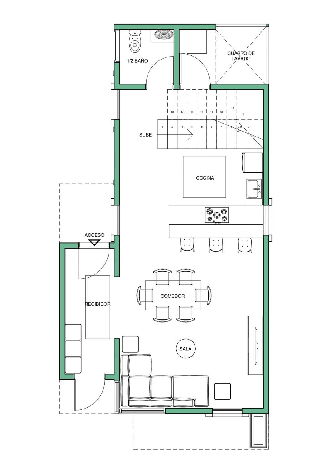
Proyecto habitacional de 5 condominios de dos niveles, y un roof garden en La Paz Baja California Sur. Cada uno con patio privado que varía en cada condominio, además de contar con una pequeña área de guardado y estacionamiento privado.
Se elaboró proyecto ejecutivo (Diseño arquitectónico, estructural, hidráulico, sanitario, eléctrico, gas, aire acondicionado, pluvial, trazo, carpintería, cancelería y acabados). Así como su construcción. Proyecto elaborado en Software BIM.
Renders 3D
Diseño arq.
Construcción
La construcción fue ejecutada por Studio Crear 81
























