Deptos. Chio
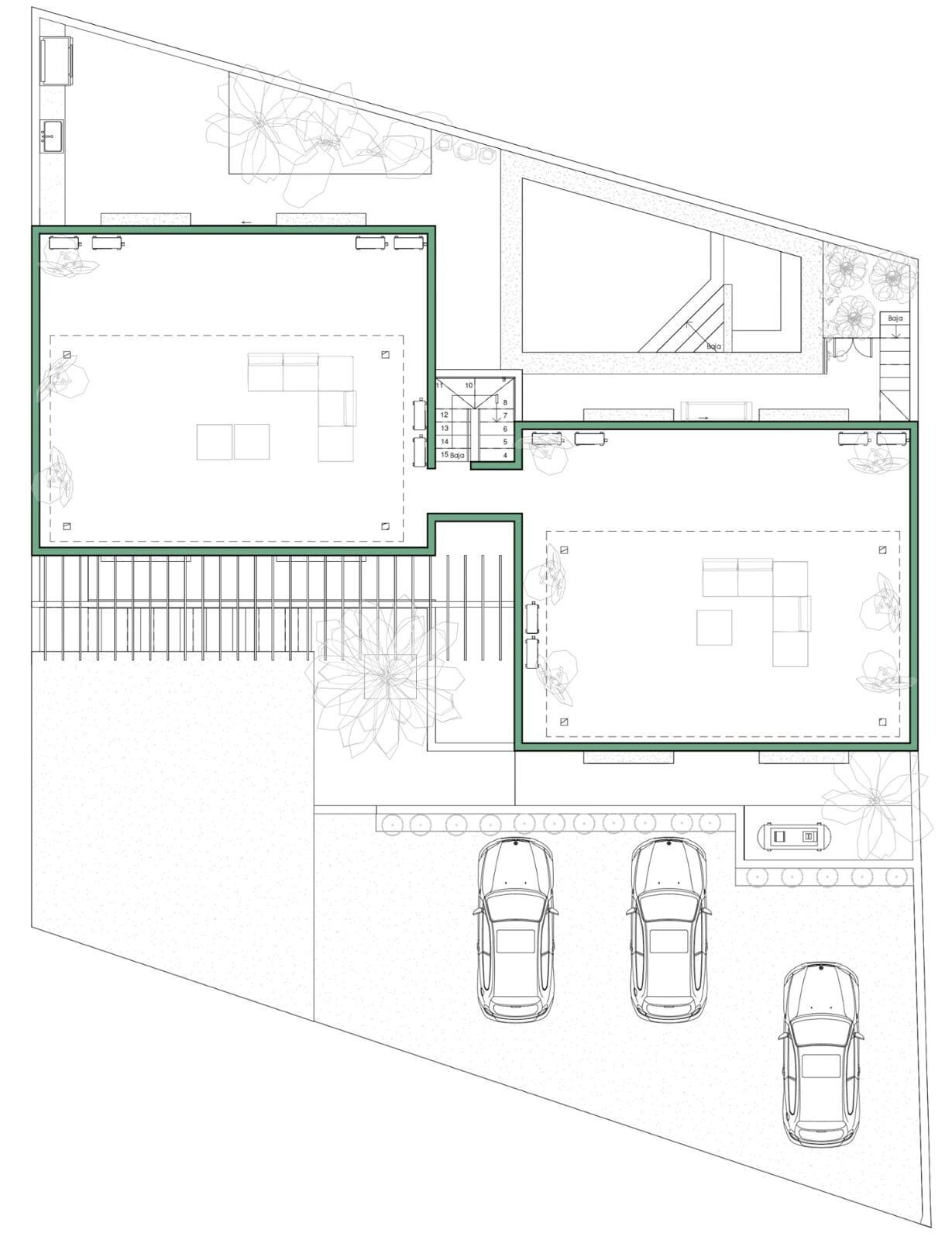
Proyecto habitacional de departamentos en espejo que constan de 2 recamaras, 2 baños completos, área para bbq-Bar, alberca y patio compartido. Diseño tradicional, espacios funcionales
Se elaboró proyecto ejecutivo (Diseño arquitectónico, estructural, hidráulico, sanitario, eléctrico, gas, aire acondicionado, pluvial, trazo, carpintería, cancelería y acabados). Proyecto elaborado en Software BIM.
Diseño arq.








Construcción
El Propietario aun no inicia la construcción.








