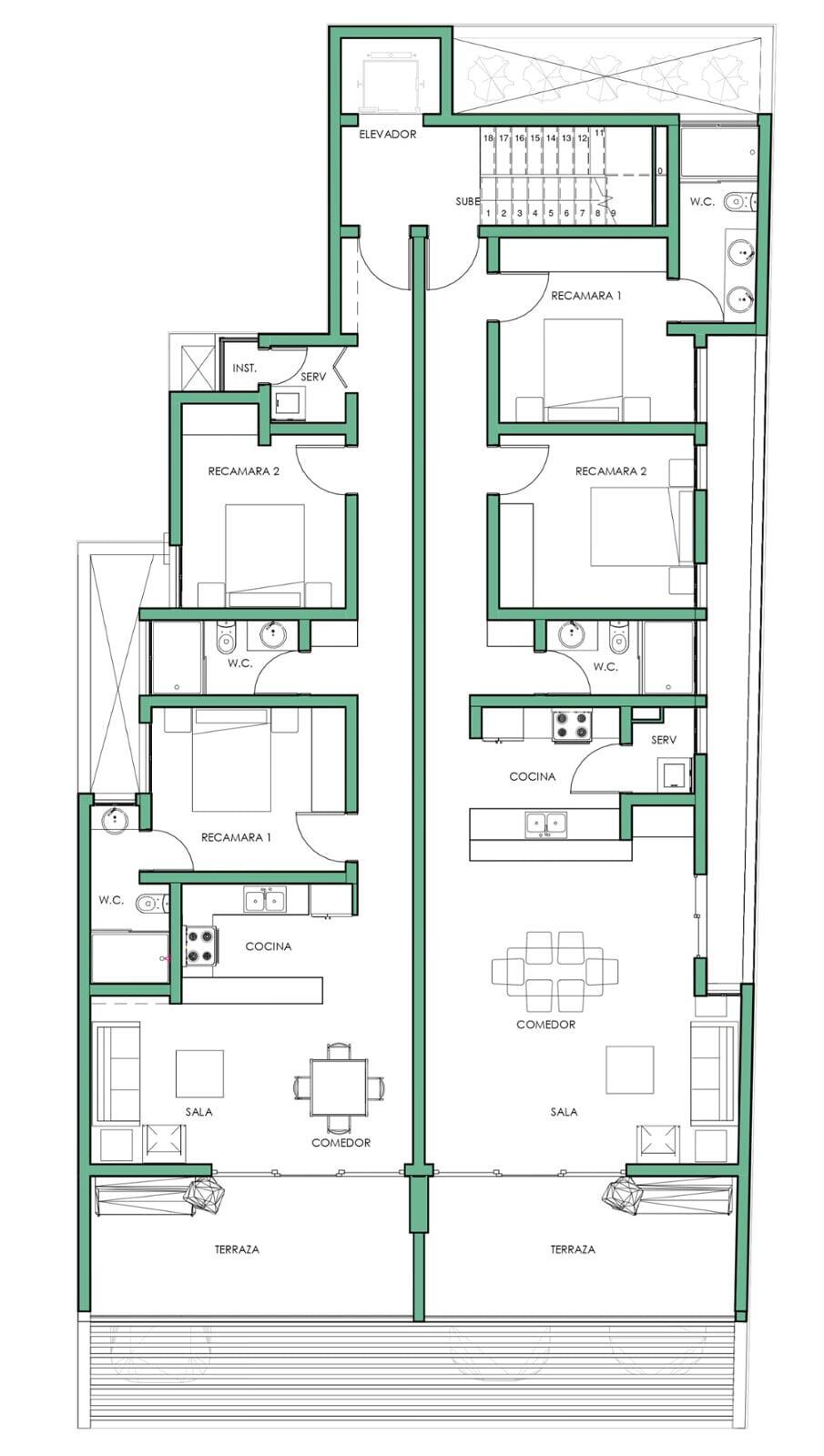
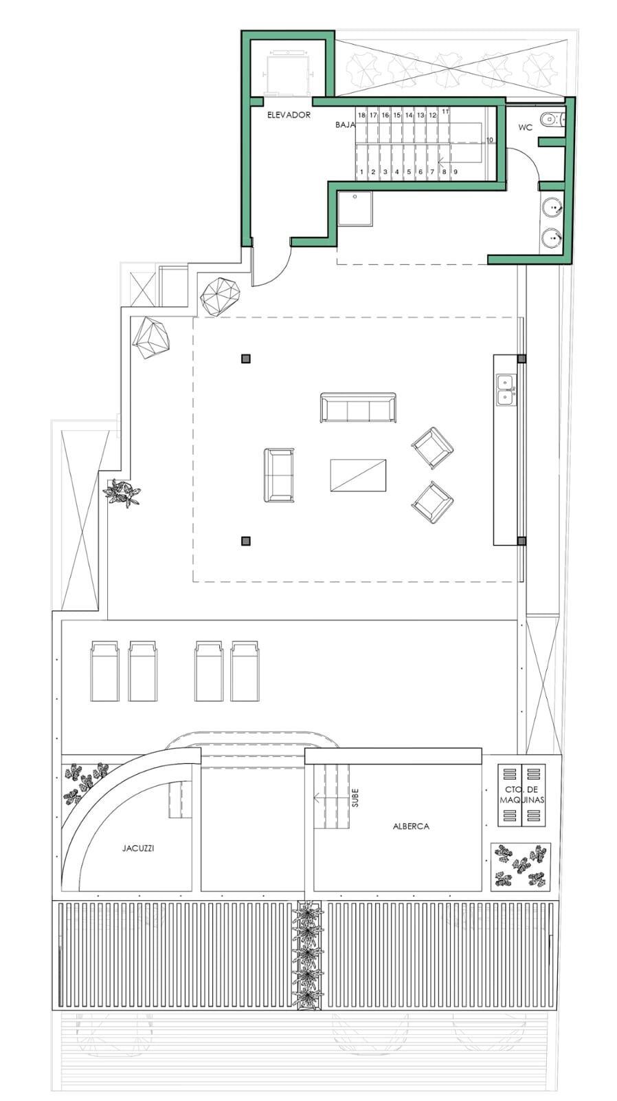
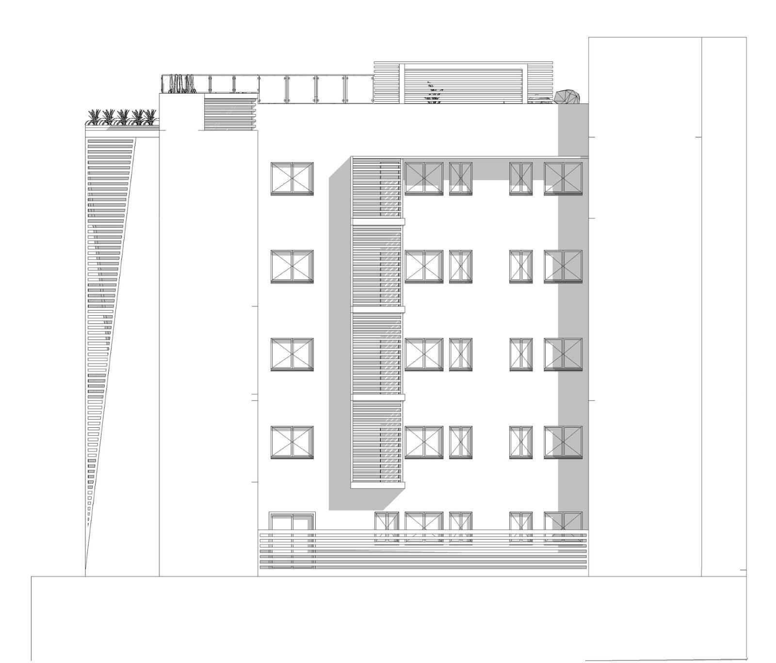
Condominios Revolución
Proyecto habitacional de 10 departamentos de una planta, distribuidos en 5 niveles. Desarrollo en el municipio de La Paz Baja California Sur en un terreno de 326.10 m². Cada uno cuenta con terraza y estacionamiento privados, además de contar con Roof Garden, alberca y área de BBQ de uso compartido.
Se elaboró proyecto ejecutivo (Diseño arquitectónico, estructural, hidráulico, sanitario, eléctrico, gas, aire acondicionado, pluvial, trazo, carpintería, cancelería y acabados). Proyecto elaborado en Software BIM.
Diseño arq.
Construcción
La construcción fue ejecutada por un tercero por parte del propietario.















