Casa Palmira
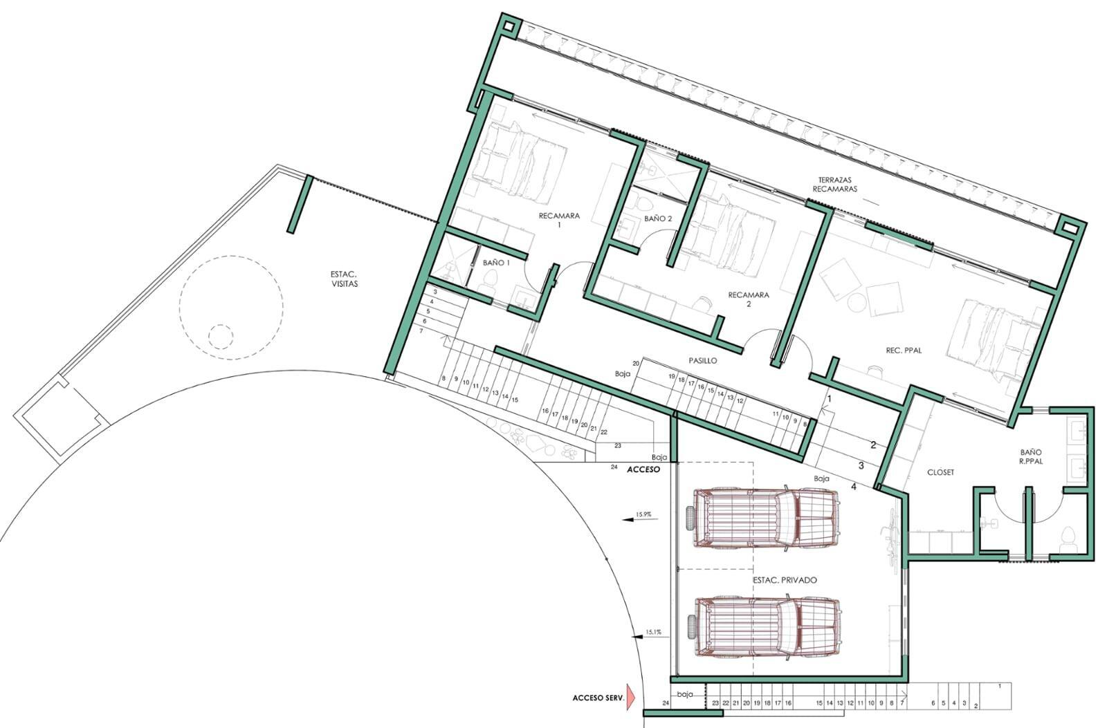
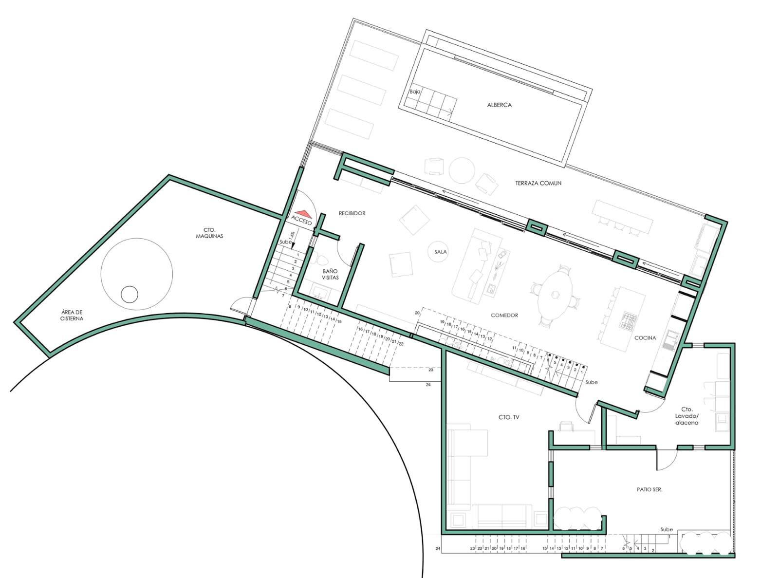
Proyecto habitacional residencial de lujo, de 3 recamaras con baño y closet independientes, la recamara principal cuenta con área de estar y walking closet, baño visitas, terrazas en las recamaras, área para Bbq, comedor exterior con alberca infinita, amplio cuarto de lavado, cuarto de televisión/juegos, patio de servicio, cochera totalmente cerrada para 2 vehículos. Diseño contemporáneo, espacios amplios y abiertos, en armonía y comunicación con el exterior por su vista al mar.
Se elaboró Ante proyecto (Diseño arquitectónico, plantas, cortes, fachadas, conjunto,). Proyecto elaborado en Software BIM.
Diseño arq.








Construcción
Se encuentra en proceso del proyecto ejecutivo.













