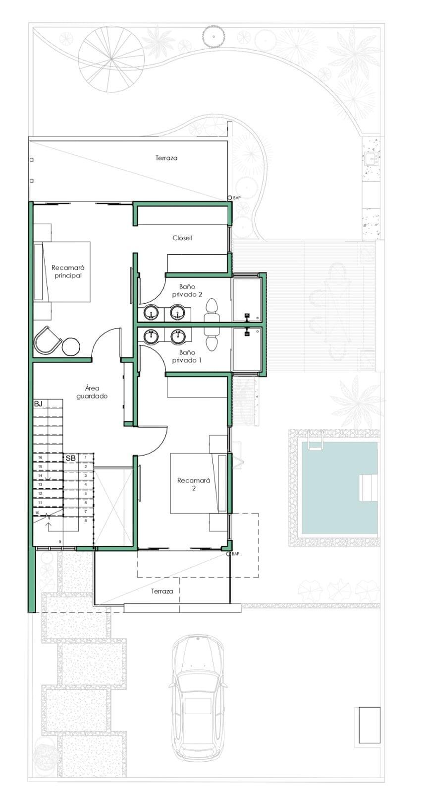
Casa Centenario
Proyecto habitacional de 3 recamaras, 3 baños completos, terrazas, área para bbq, comedor exterior, alberca y patio. Diseño contemporáneo, espacios amplios y abiertos, en armonía y comunicación con el exterior.
Se elaboró proyecto ejecutivo (Diseño arquitectónico, estructural, hidráulico, sanitario, eléctrico, gas, aire acondicionado, pluvial, trazo, carpintería, cancelería y acabados). Proyecto elaborado en Software BIM.
Diseño arq.








Construcción
El Propietario vendió el proyecto junto con el predio.










