Town Houses Salt Breeze
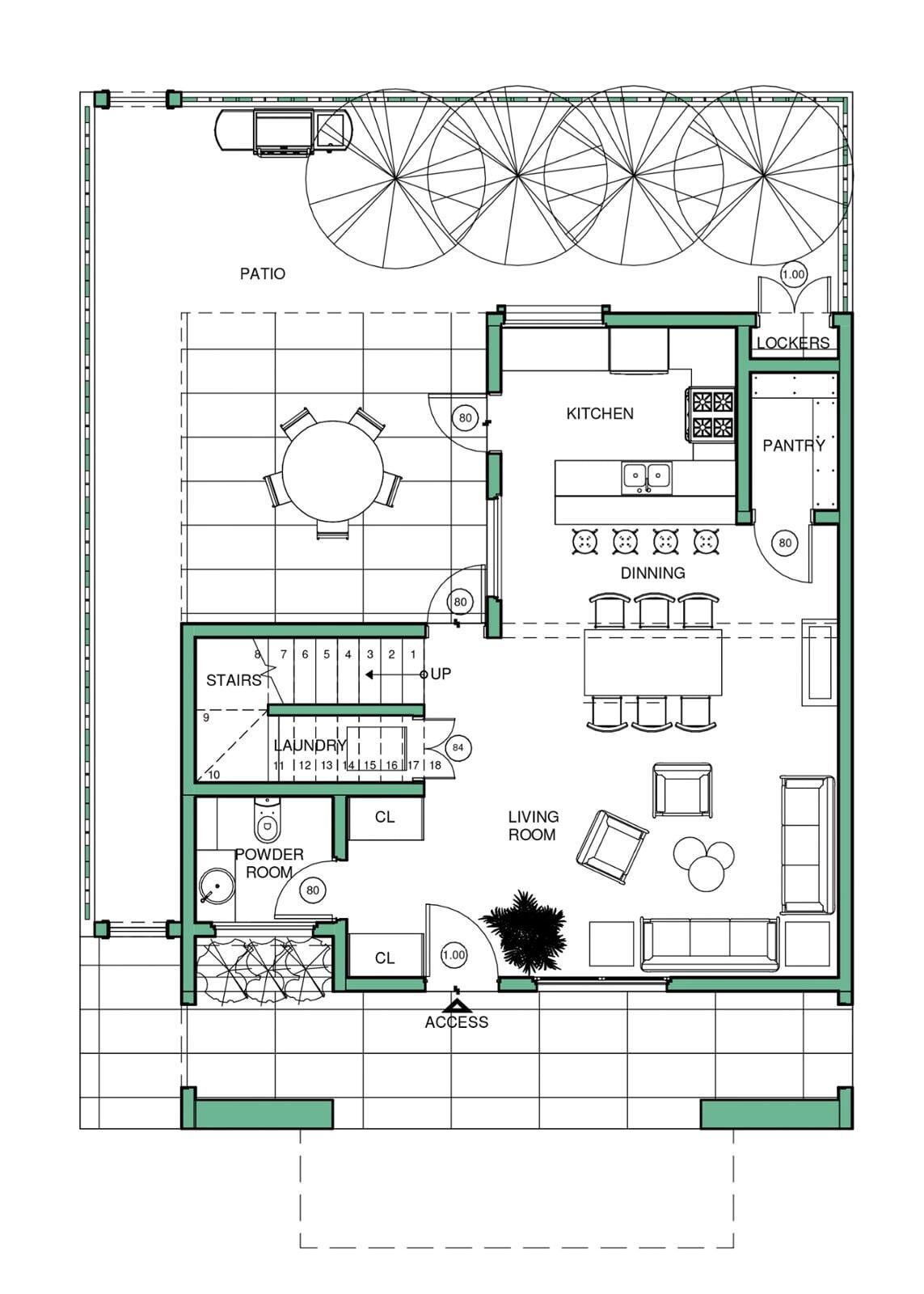
Proyecto habitacional de 14 condominios de dos niveles, y un Roof Garden. Desarrollo en Cerritos municipio de La Paz Baja California Sur en un predio con una superficie de 4,000.00 m². Teniendo cada uno un patio y bodega privados, además de contar con áreas de jardín, alberca y estacionamiento de uso compartido. Saltbreeze se caracteriza por la combinación de acabados rústicos y modernos como el ladrillo, acero y concreto aparente.
Se elaboró proyecto ejecutivo (Diseño arquitectónico, estructural, hidráulico, sanitario, eléctrico, gas, aire acondicionado, pluvial, trazo, carpintería, cancelería y acabados). Proyecto elaborado en Software BIM.
Diseño arq.








Construcción
La construcción fue ejecutada por un tercero por parte del propietario.








